Rechercher dans ce blog

Wednesday, December 30, 2020

74-unit apartment building proposed for 17th Street in downtown St. Pete - St. Pete Rising

200 17th Street features a modern design with ground floor parking, a fitness room on the second floor, and bike storage on the sixth floor.

Another infill apartment building that is seeking to take advantage of recent changes to the City’s parking code will go before Community Redevelopment Agency (CRA) on January 7th

Developer Tony Zhukovskyi is proposing a 74-unit development at 200 17th Street North. The building will be located less than a block away from the two other apartment buildings he recently proposed at 1750 2nd Avenue North and 1735 1st Avenue North.

In September 2019, St. Pete City Council approved a package of Land Development Regulation (LDR) changes in an effort to help reduce the cost of building housing in the city. The package of code changes was just one prong in a multifaceted approach to help address housing affordability in the Sunshine City. 

The changes, which included eliminating onsite parking requirements for residential units in downtown under 750 square feet, have opened up smaller lots for potential residential development that otherwise would have been too small to accommodate the previously required parking.

Two single family homes, pictured here, will be razed to make way for the 74-unit development.

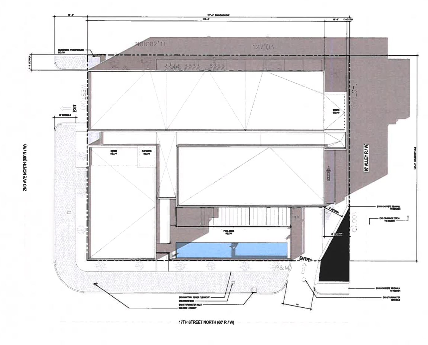
The building at 200 17th Street North will be six stories and will replace two single-family homes which Zhukovskyi purchased earlier this year for $597,500. According to documents filed with the City, the project is expected to cost $3.5 million. 

The first floor of the building will consist of a resident lobby, two studio apartments, twelve car parking spaces, six motorcycle parking spaces, and bicycle parking. Parking on the ground floor will be accessible via 17th Street. With twelve parking spaces, six motorcycle spaces, and 74 residential units, the parking ratio is 0.24 spaces per unit.

The second floor will have 14 studio apartments along with resident amenities like a fitness center and an outdoor pool area. Floors three through five will include two one-bedroom apartment units and 13 studio apartments each while the sixth floor will have 13 studio units. The majority of the apartments are smaller micro-units.

Interestingly, the building’s main bike storage room is also located on the sixth floor, although a smaller bike storage area exists on the ground floor too. With 80 total bike spaces, the building has 1.08 bike parking spaces per unit, which is four times the vehicular parking ratio per unit.

The building will feature an outdoor pool deck on the second floor that will overlook 17th Street.

The proposed development is located within the Downtown Core (DC-2) zoning district. Development potential in DC-2 is regulated by Floor Area Ratio (FAR). Similar to other buildings that Zhukovskyi has proposed, the proposed FAR for the building at 200 17th Street North is 3.0, which is the maximum allowable FAR for a development seeking base approval. In other words, Zhukovskyi is proposing to construct the largest building by area allowable under zoning regulations without needing FAR bonuses. The site has an allowable height of 125 feet, however the proposed height is just under 62 feet.

The building is seeking City Council’s approval as being consistent with the Intown West Redevelopment Plan. While it is likely to be approved given that it’s substantially similar to prior buildings which have previously been approved, in the past some Council members have expressed concerns with residential buildings of this scale in this part of downtown. 

200 17th Street is shown in red while Zhukovskyi’s previous two proposed buildings, 1750 2nd Ave N and 1735 1st Ave N, are shown in blue.

In October, when the proposed building at 1750 2nd Avenue North went before Council, City Council members Gina Driscoll and Robert Blackmon objected to it as being out of character for the neighborhood, which consists of a mix of single family homes and multifamily buildings. Ultimately the building was approved by a 6-2 vote. The building at 1735 1st Avenue North, however, was approved unanimously.

The area immediately surrounding 200 17th Street has seen a number of large developments completed in 2020. Most recently Vantage Lofts, Artistry Apartments, 1701 Central, and a Tru by Hilton hotel have brought 700 news apartment units and 132 hotel rooms to the area. 

Once complete, 200 17th Street will join a growing area of downtown St. Pete that is nestled between the popular EDGE District and the burgeoning Grand Central District. No construction timeline was presented on the City Council agenda.

More renderings of 200 17th Street can be found below.

Let's block ads! (Why?)



"street" - Google News
December 30, 2020 at 09:48PM
https://ift.tt/37W8kuW

74-unit apartment building proposed for 17th Street in downtown St. Pete - St. Pete Rising
"street" - Google News
https://ift.tt/2Ql4mmJ
Shoes Man Tutorial
Pos News Update
Meme Update
Korean Entertainment News
Japan News Update

No comments:

Post a Comment

Search

Featured Post

5 Negara yang Terkenal akan Street Food Nikmat Mereka - IDN Times

Berwisata ke luar negeri tak lengkap rasanya jika tidak mencoba berbagai hal yang khas dari negara tersebut. Mulai dari tempat wisata , b...

Postingan Populer